Mixed Use Redevelopment, Finchley

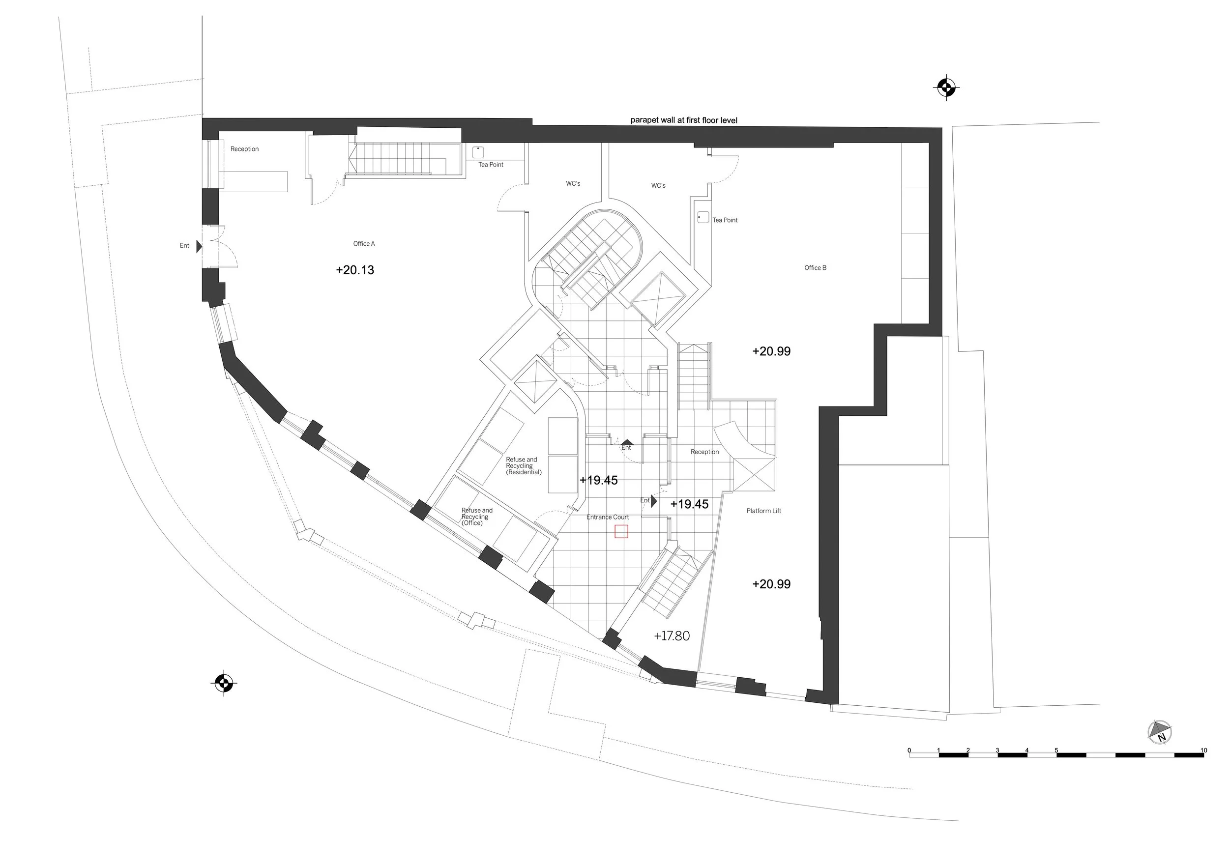
We were commissioned to look at redeveloping the site of the former Queen's Head Public House, although the site had been converted to offices and residential many years ago. We looked at two options, one converting the existing and using permitted development rules to provide additional homes through extension and additional conversion, the other knocking everything down and building a new more luxurious development. Both schemes retained commercial uses at the ground and basement levels, with residential apartments over.

Conversion and Extension Scheme:

New Build Scheme:

Previous
Previous

Residential Development, Chadwell

Next
Next

Residential Development, Mitcham